Rynek Pierwotny - Dom wolnostojący 149m2 - Kolonia Mrokowska
Rynek Pierwotny - Dom wolnostojący 149m2 - Kolonia Mrokowska
Lesznowola, piaseczyński, Mazowieckie
1.200.000 zł
NA SPRZEDAŻ
Opis
Klient NIE PŁACI prowizji , ani podatku PCC. Przedstawiamy Państwu dom wolnostojący na osiedlu 24 budynków. Osiedle zlokalizowane jest w gminie LESZNOWOLA miejscowość Kolonia Mrokowska. Doskonała lokalizacja - miedzy Aleją Krakowską E7 a nową trasa S7. Czas dojazdu do centrum Warszawy zajmuje od 20 do 35 min, w zależności od natężenia ruchu.
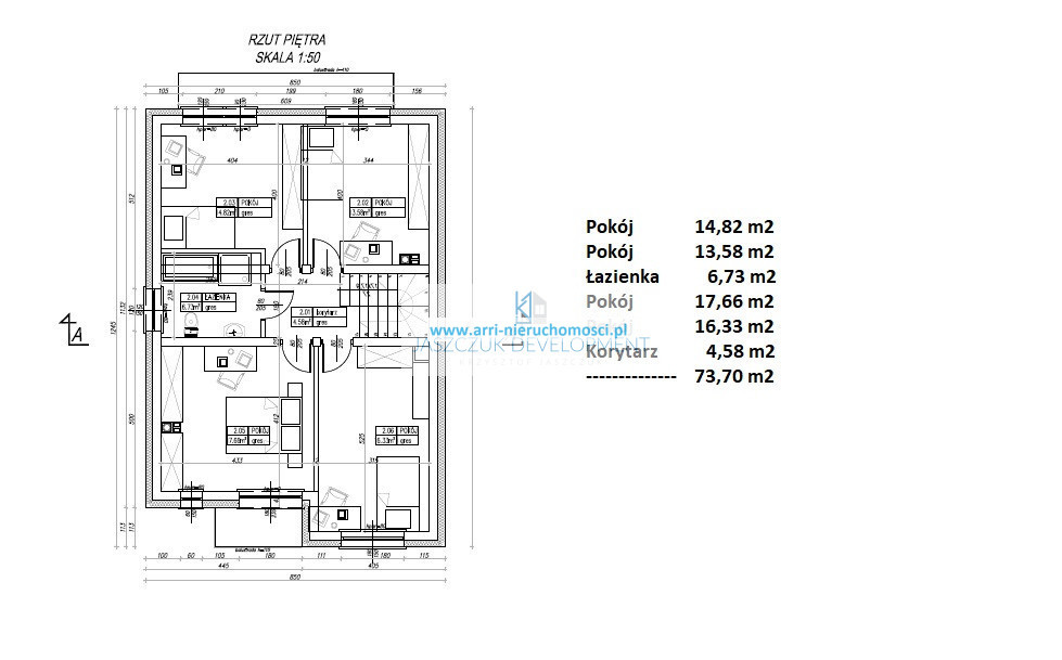
Oferowany dom ma powierzchnię 149,63 m². Na parter składają się: wiatrołap, korytarz, kuchnia, salon z jadalnią, kotłownia, łazienka, garaż; natomiast na piętrze znajdziemy: korytarz, 4 pokoje oraz łazienka. Dom usytuowany jest na działce pow. 680 m².
Domy będą wyposażone w instalacje do podłączenia ogrzewania za pomocą gazu miejskiego.
Budynek murowany z pustaka ceramicznego posadowiony na ławach fundamentowych, stropy żelbetowe.
- ogrodzenie od ulicy na podmurówce,
- ogrodzenie między budynkami panelowe,
- brama i furtka metalowe,
- kostka betonowa na podjeździe,
- taras na ogrodzie,
- teren ogrodu wyrównany,
- brama garażowa panelowa w kolorze grafitowym,
- drzwi zewnętrzne drewniane w kolorze grafitowym,
media w budynku: woda, kanalizacja sanitarna, gaz, energia elektryczna, instalacje: alarmowa, internetowa, domofonowa, TV
Standard wykończenia:
"budynek na fundamencie, ocieplony : 15cm wodyster, siatka z klejem, dystrobit, folia kubełkowa,
- ściany z pustaka ceramicznego POROTHERM 25 cm,
- ocieplenie styropianem 20 cm
- dachówka betonowa JBF
- okna trzyszybowe; sześciokomorowe; PCV w kolorze grafitowym z zewnątrz; białe w środku
- tynki wewnętrzne wapienno-piaskowe lub gipsowe,
- tynki zewnętrzne silikatowo-silikonowe w dwóch kolorach,
- parapety zewnętrzne,
- ogrodzenie od ulicy na podmurówce,
- ogrodzenie między budynkami panelowe,
- brama i furtka metalowe,
- kostka betonowa na podjeździe,
- taras na ogrodzie,
- teren ogrodu wyrównany,
- strop żelbetowy ( PARTER/PIĘTRO)
- strop żelbetowy wylewany ocieplany 15 cm styropian, (PIĘTRO/STRYCH)
- wszystkie instalacje elektryczna, gazowa, wodna , kanalizacyjna, alarmowa i telewizyjna,
- podłączenie- miejsce na kominek,
- brama garażowa panelowa w kolorze grafitowym,
- drzwi zewnętrzne drewniane w kolorze grafitowym,
- ogrzewanie podłogowe w HOLLU, KUCHNI I ŁAZIENKACH,
- instalacja do podłączenia pieca co,
- instalacja trójfazowa w kuchni,
- instalacja na zewnątrz pod domofon,
- internet doprowadzony do skrzynki rozdzielczej w garażu"